Biblioteca Central de Ginebra

Biblioteca Central de Ginebra

Concurso internacional · 2023

En colaboración con Joan Massagué

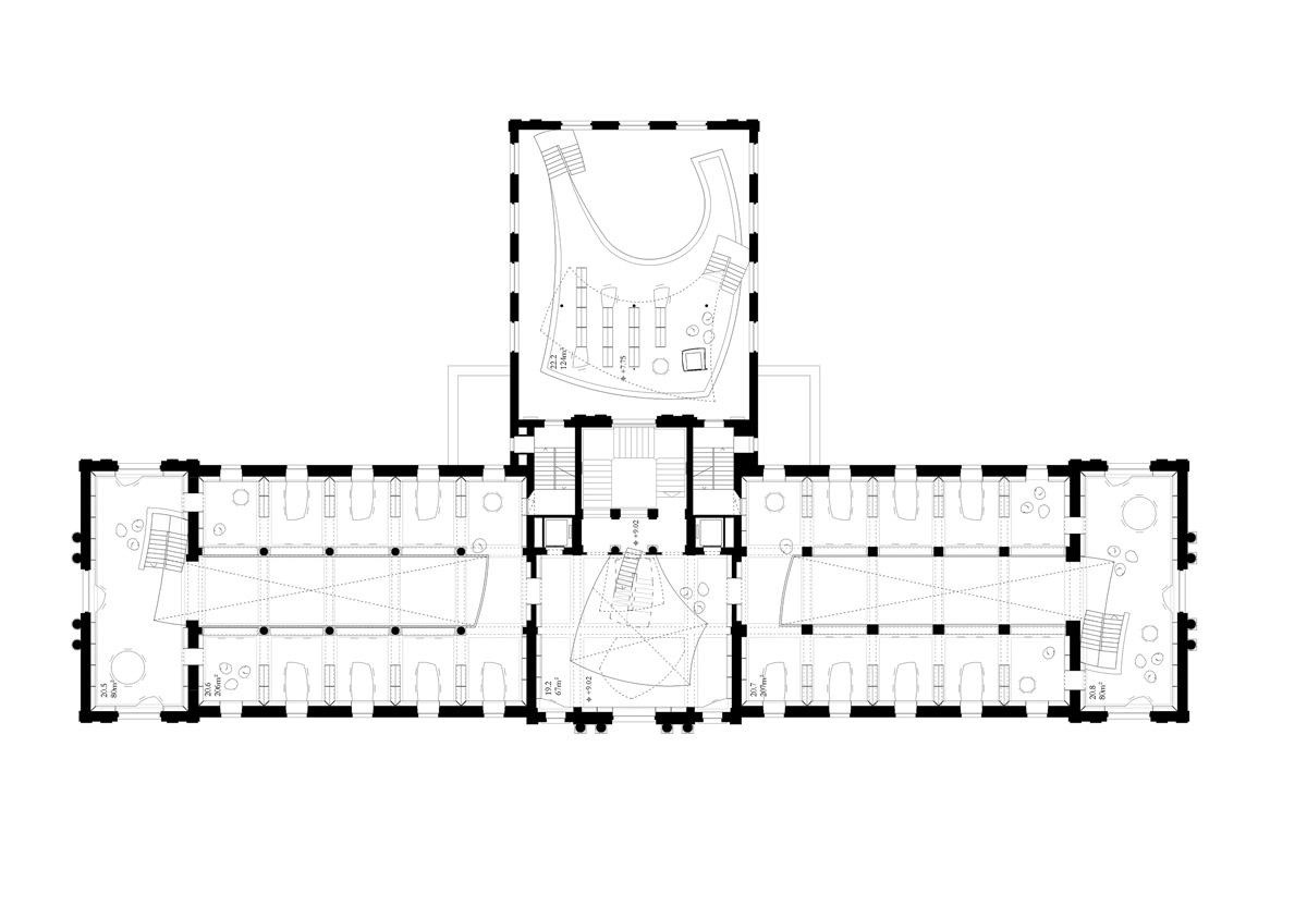
La propuesta para la nueva Biblioteca Central de Ginebra parte de una actitud de cuidado, respeto y escucha activa hacia el conjunto patrimonial de los Bastions. El proyecto interviene en dos ámbitos principales: la rehabilitación del ala Salève, uno de los cuerpos históricos del complejo, y la construcción de un nuevo archivo subterráneo bajo la plaza de acceso, articulando un sistema funcionalmente claro y energéticamente eficiente que responde a las necesidades del siglo XXI.

La propuesta busca descongestionar y clarificar la lectura del edificio existente, liberándolo de estructuras añadidas a lo largo del tiempo. Esta operación permite restaurar su volumetría original y devolver la luz y el aire a sus espacios interiores, especialmente a la biblioteca histórica, que recupera así su condición de espacio noble, diáfano y acogedor.

El nuevo archivo, enterrado bajo la plaza, se plantea como un mecanismo de precisión estructural y técnica, diseñado para garantizar las condiciones óptimas de conservación, seguridad y accesibilidad. Su carácter soterrado minimiza el impacto sobre el parque y mejora la conexión entre las tres alas del conjunto mediante un núcleo logístico subterráneo, funcional y directo.

La propuesta propone una arquitectura precisa, silenciosa y comprometida con el patrimonio, capaz de proyectarlo hacia el futuro sin renunciar a su carácter. Una intervención clara y contenida, que entiende la biblioteca como un lugar de memoria, pero también de proyección colectiva: abierto al conocimiento, a la ciudad y al tiempo.

h3o architects

Concurso internacional

Ginebra, Suiza

Biblioteca

2023

Cliente: Ville de Genève

Equipo h3o: Miquel Ruiz Planella, Joan Gener González, Adrià Orriols Camps, Joan Massaguè

Renders: Joan Massaguè